不同类型的泵机械密封管道计划在API 682或ISO 21049标准中详述。
用于单密封件的泵浦管道计划
在以下段落中讨论了用于单密封件的最常见类型的泵浦密封管道计划。在另一篇文章中解决了常见类型的双密封。
计划01:这是从泵排出到密封室中的内部再循环。计划01建议用于清洁泵送产品,因为脏产品可以擦除内部线路。建议不要用于垂直泵。其优点如下:避免产品污染,不需要外部管道,在低环境温度下尤其有利的东西(冷冻的风险)。
计划11:现在使用最广泛的冲洗计划之一。计划11从泵排出或从中间级采用流体,并通过适当设计的孔口将其引导到密封室(侧流应具有比泵叶轮直接在泵叶片后面的普遍压力稍大的压力稍大的压力)以冷却和润滑密封面。类似于计划01,避免了产品污染,而互连管道相对容易安装。
计划12.计划12类似于计划11,除了一个例外过滤器将过滤器添加到冲洗线上以保护密封表面。采用差压指示器或警报,以便警告用户已堵塞过滤器或过滤器。
计划21.:计划21是平面图11的冷却版本。在泵放电和减压孔之间安装了热交换器,用于降低密封流体温度。冷却提供润滑并最小化密封室中蒸发的可能性。然而,由于施加在热交换器上的大热量负载,现在不经常使用计划21。它通常用冲洗计划23代替。
计划23.:计划23类似于规划21.通常优选热水服务,尤其是锅炉给水。计划21更有效
计划32.:计划32使用外部冲洗流。正确选择时,该冲洗流可导致延长密封寿命。
计划41.:在计划41中,来自泵出口的产品通过分隔符然后通过一个热交换器在被引入密封室之前。这通常用于具有固体的热服务。
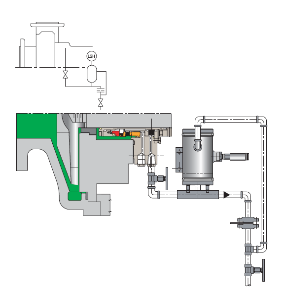
计划62:利用平面62,使用淬火气体将外部流体流带到密封面的大气SDIDE。淬火气体可以是蒸汽,氮气或水。典型应用包括以下内容:在热表面上蒸汽淬火以延迟焦化,氮气淬火对冷或低温服务进行防止结冰,水猝灭用于预防结晶。计划62的待院的一个是水的低效使用。
计划65.:计划65使用安装在储库的水平开关,以在检测到过度泄漏时启动报警。这样,在过度密封泄漏的情况下,可以关闭设备。该系统还包括允许孔径绕过孔口的环路:以这种方式,避免了密封件的Amtompheric侧上的高压。





